a

Latest Posts:

Sorry, no posts matched your criteria.

Follow Us:

Back To Top

Лазерне сканування

Технологія наземного лазерного сканування - це найкращий спосіб отримати точну інформацію про розміри об'єкта та його елементи. Кінцевими матеріали сканування є деталізована хмара точок на основі якої можна виконувати детальні робочі креслення та обрахунки.

1 Сканування у будівництві

Дозволяє детально зафіксувати усі елементи будівлі на різних етапах її спорудження. На основі цього сканування можна виконувати необхідні розрахунки та креслення. Об’єктами сканування можуть бути як окремі кімнати, поверхи чи будівлі, так і великі склади та заводи.

 

Приклади застосування:

str2
str
PXL_20210831_082904432
image_2021-09-20_13-47-39
image_2021-09-20_13-46-19
previous arrow
next arrow

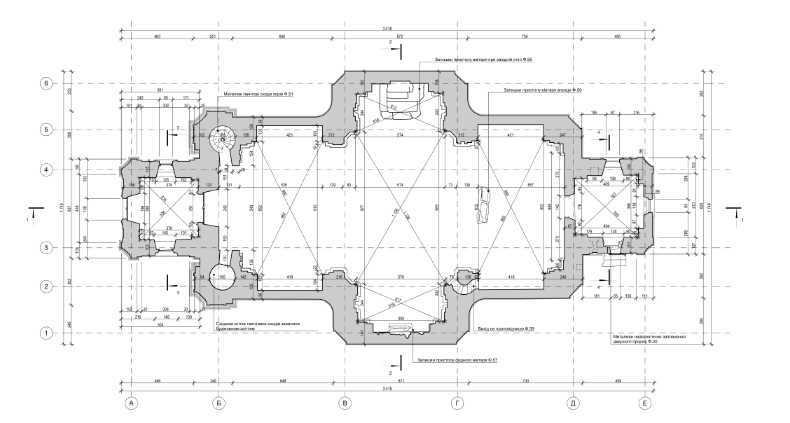
2 Сканування в архітектурі

Дозволяє детально зафіксувати важливі параметри будівлі, виконати проектні креслення. Саме детальне сканування є початковим етапом при створенні проекту реконструкції чи реставрації.

Приклади застосування:

IMG_20191226_133600
IMG_20191226_101846
God5
God4
God3
God2
God
previous arrow
next arrow

3D-графіка – хмари точок, отримані в результаті сканування можна обробляти у різних комп’ютерних програмах.

3 CAD/BIM моделювання та робочі креслення

Сканування є підосновою для створення структурних CAD/BIM моделей, робочих креслень.

Приклади застосування:

image_2021-09-20_15-45-04
almaz
previous arrow
next arrow

2D-графіка – альбоми архітектурних креслень(фасади, плани, деталі) у заданому масштабі

BIM-моделювання – переведення хмари точок у BIM-модель.